- 最寄駅
- 
                  - 肥後橋駅 徒歩2分
 
- 住所
- 大阪府大阪市西区江戸堀1-19-25
- 竣工
- 1991年06月
 
              関西エリアの
セットアップ・
居抜き物件を見る
          セットアップ・
居抜き物件を見る
No.7405-0
小谷パークビル
お問い合わせこの物件の空室状況は
別途お問い合わせください。
未公開空室情報のご提供が
可能な場合があります。
物件情報
- 
              物件名 小谷パークビル
- 
              所在地 大阪府大阪市西区江戸堀1-19-25
- 
              最寄り駅 肥後橋駅 徒歩2分
- 
              竣工 1991年06月
- 
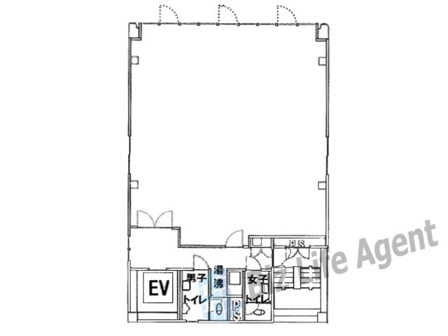
              規模 地下1階~地上5階建
- 
              基準階面積 45坪
- 
              耐震 新耐震基準
- 
              空調 個別空調
- 
              駐車場 有り
- 
              エレベーター 1基
- 賃料、共益費、その他の費用には別途消費税がかかります。
- 成約に至った場合、仲介コンサルティング料として賃料の1ヵ月分を申し受けます。
- 現況が異なる場合は現況を優先します。

