- 大阪の賃貸オフィス探しならビルネクスト
- 居抜き・セットアップ
- No.425-K 大阪市西区【事務所】
No.425-K大阪市西区【事務所】
- この物件についてお問い合わせ
- 住所:大阪市西区
- 最寄り駅:大阪メトロ四ツ橋線 四ツ橋駅 徒歩3分
- 推奨人数:10名前後










物件情報
| 物件タイプ | 事務所 |
|---|---|
| 入居可能時期 | 即入居 |
| 広さ(坪数) | 20~25坪 |
| 貸室内エントランス | なし |
| 会議室・その他 | 倉庫(または更衣室) |










| 物件タイプ | 事務所 |
|---|---|
| 入居可能時期 | 即入居 |
| 広さ(坪数) | 20~25坪 |
| 貸室内エントランス | なし |
| 会議室・その他 | 倉庫(または更衣室) |
特徴
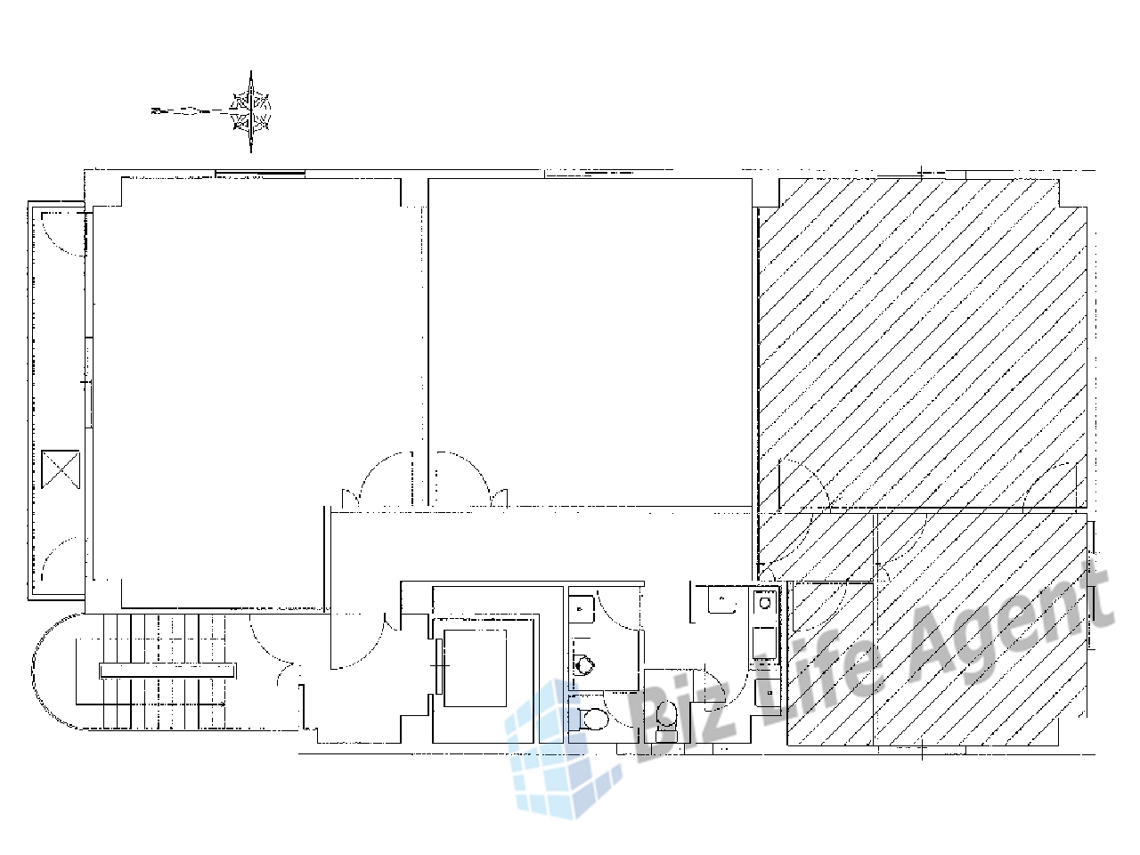
四ツ橋駅から徒歩3分の物件にて居抜き区画が募集開始となりました。約10名ほどで利用がいただける区画となり、執務スペース2部屋+倉庫(または更衣室)1部屋で区切られたレイアウトになっております。倉庫(または更衣室)は約2坪ほど程よい広さでございます。執務スペースはすりガラスパーテーションにて2部屋に区切られており、片方を会議室として利用する事も可能です。なお、タイルカーペット、壁のクロス、ブラインドはデザインをご指定頂いたものに新調致します。
ご興味お持ちいただける方はぜひ一度お問い合わせくださいませ。